St. Martin in the Fields – 75th Anniversary Capital Campaign


All are welcome.

At St. Martin’s, all are welcome. Before communion each week, we hear, “all are welcome at God’s table - it’s God’s table, so of course, all are welcome.”

All are welcome in ‘God’s house.’ Of our strategic planning priorities:  outreach, formation for all ages, and tending to buildings and grounds, the last category is about ‘God’s house’ - a place for the tremendous growth and vitality we are experiencing and for important mission and ministry over the past many years.  

We will celebrate our 75th Anniversary throughout 2026. For the sake of St. Martin’s Church and all who will be welcome in the future, it is time to tend to the long-identified projects that the Capital Campaign is designed to support: enhancing the Prayer Garden, renovating the Kitchen and Gable Hall, creating a Cafe, and replacing the Sanctuary's HVAC. We also dream of funding a Capital Reserve Account. All this to ensure that St. Martin’s is a place where all are welcome for 75 years to come.

The Vestry believes this $2 million Capital Campaign can succeed with your commitment and payment over the course of these three years - 2024, 2025, 2026. The Vestry has timed the campaign and project completion to match the celebration of the church's 75th anniversary in 2026.


New Things

Project updates will appear here.

September 2025: The Prayer Garden is nearing completion of Phase 1.

September 2025: Gable Hall, Cafe, and Kitchen are under construction.

April 1, 2025: Renderings of Gable Hall, Cafe, Kitchen, Prayer Garden, and Floor Plan

Gable Hall Rendering

Cafe Rendering

Kitchen Rendering

Prayer Garden Rendering

Prayer Garden Entry Structure

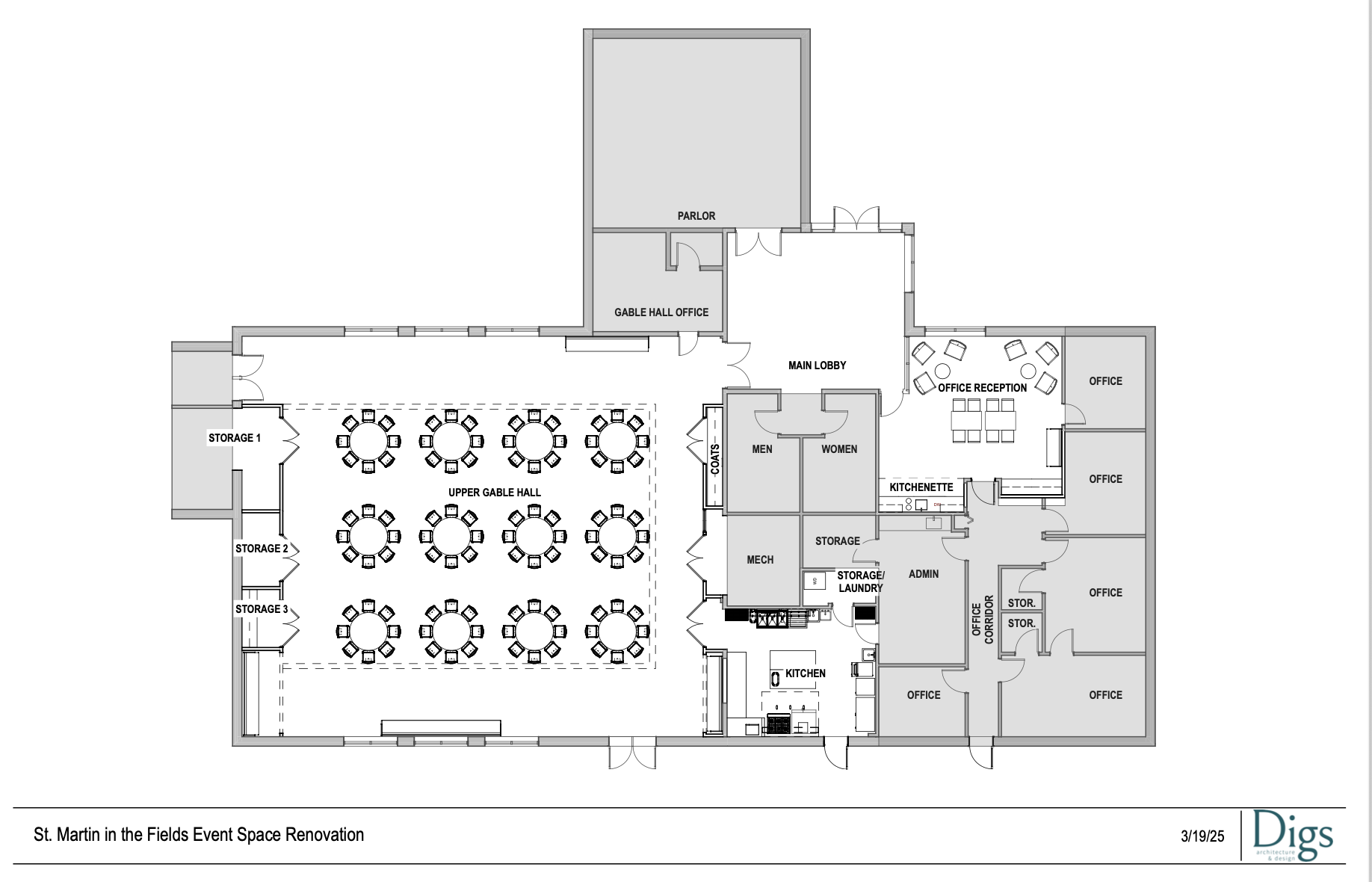
Floor Plan


Cost

The total cost of all projects is estimated at $2 million.

Prayer Garden: $400,000 | COMPLETED

Gable Hall / Kitchen / Cafe: $1,333,000

HVAC: $250, 000 | COMPLETED

Capital Reserve Account (Facilities Study): $17,000 | COMPLETED

Pledges to support these projects:

As of October 14, 2025: $2,011,767.50


Timeline

March 2024 - Gather estimates for work on capital projects | COMPLETE

July 2024 – The quiet phase of the Capital Campaign begins | COMPLETE

August 2024 – The Capital Campaign is public.  Commission facilities study; design, permitting, and construction bidding for the Kitchen/Gable & Prayer Garden; execute contract on HVAC | COMPLETE

October 2024 – Plan to install the new HVAC in the Sanctuary | COMPLETE

January 2025 - Review plans & designs and make appropriate adjustments | COMPLETE

February - March 2025 - Receive contractor initial bids, review, and select contractor. Modify plans where appropriate | COMPLETE

April 2025 – Sign construction contracts | COMPLETE

May 2025 - Construction for Kitchen/Gable/Cafe and Prayer Garden projects commence at the end of the month | BEGUN

June - December 2025 - Construction and completion of all projects | BEGUN

May 2026 - Celebrate St. Martin's 75th Anniversary and all completed projects

December 2026 - Give thanks for generosity and faith shared in this Capital Campaign so that all are welcome for many years to come


Prayer Garden

We plan to enhance our beloved prayer garden and make it a welcoming bridge between the church and the school.

A redesigned entrance with a custom archway will make the space more visible and an accessible parking space will be added. Improved paths will wind through the garden, leading to gathering areas for quiet reflection and worship.

  • New perennial garden featuring sustainable native plants.

  • New memorial section for interment of ashes with adjacent water feature.

  • New labyrinth at the center of the garden.

  • Accessible entry and paths and designated handicap parking in proximity to the garden.

  • Care for our trees.

Prayer Garden Rendering

Prayer Garden Entry Structure


Kitchen, Gable Hall, and Cafe

The kitchen, Gable Hall, foyer, and office entry will be renovated and transformed into a welcoming gathering space where we can enjoy spending time in community as ONE St. Martin’s.

The revamped space also will allow us to extend hospitality to the larger community in new and vibrant ways.

  • Kitchen redesigned for more efficient space use, with all-new equipment and appliances.

  • New cafe in repurposed office entry for informal socializing and meeting space.

  • Gable Hall refreshed from ceiling to floor to create a warm, friendly space suitable for both church events and community gatherings.

  • Foyer refreshed to create cohesive space design between Gable and cafe.

These spaces will remain places for ministry and mission, and the community will benefit from these enhanced spaces.


HVAC

Replacing the HVAC increases efficiency and reliability.

As you may have experienced, the old heating and air-conditioning system struggled to heat and cool the sanctuary consistently and smoothly. With the upgrade to our new system, we have installed proper ducting to circulate temperature-controlled air, and we have eliminated the noise of the blowers formerly operational behind the lectern and pulpit. With the new proper air flow, all who come to worship at St. Martin’s now can be comfortable in any location within the church.

  • The new system was installed by MaxAir Mechanical and all obsolete component parts were removed.

  • Ducting was installed within the Sanctuary, framed and hidden by wood, stained to match our ceiling.

  • Since project completion in early November 2024, air flow has been properly distributed throughout the Sanctuary, and the aesthetic has received high compliments.

Here is a close-up photo of the finished HVAC duct work


Capital Reserve Account

Seeding a Capital Reserve Account for future capital projects will allow the church to address significant needs of our buildings and grounds without delay.

Any monies pledged above our $2,000,000 goal will seed the Capital Reserve Account. We have addressed deferred maintenance from within the operating budget in the last several years. And, further in the past, when we had identified a project as a priority, we sometimes delayed executing that capital improvement for lack of funds. This reserve account will enable us to care for our campus in a timely manner.

  • A facilities study took place in the summer of 2024 and gave us a timeline for addressing capital needs to plan for expenditures over the course of the next fifteen years.

  • A capital reserve account will work in conjunction with the Endowment Fund’s support of capital projects at St. Martin’s, and with any operating budget allocation for planned upgrades.

  • The Capital Reserve Account will enable us to maintain our buildings and grounds.


75th Anniversary Capital Campaign Pledge Card

Click here to pledge online. Note that if you wish to give online, you must separately set up that gift and choose “75th Campaign” from the dropdown menu in Realm.

Alternatively, you may pick up or print a paper pledge card, or you can pledge via email to Business Administrator Leslie Rose at lrose@stmartins.org, who is available to assist you in any way with your pledge or gift.


Frequently Asked Questions

  • We haven’t had a capital campaign in awhile - this is the first church-specific capital campaign at St. Martin’s since the mid-1970s and it is time to support these long-anticipated projects. This campaign is timed to completion for our 75th anniversary celebrations.

  • We have learned from a number of other churches and consultants that we should be able to raise this $2 million without too much trouble. Now that project costs amount to $2 million, if we raise more, or "too much," the monies will seed the Capital Reserve Account we hope for, up to $400,000. If we raise even more, the Vestry will ensure that the money is reserved for the mission and ministry of the church, looking to the next 75 years of St. Martin’s impact on the community. If we raise too little, the Vestry has committed to use some portion of savings that resides in our invested reserve account to ensure that the projects can be completed. We are confident that we can complete the proposed projects with your support.

  • First, thank you for your pledge and for your support. We would like to receive the money in 2024, 2025, and/or 2026. Your early gifts will ensure that we have the cash flow for the projects. As most of the construction will take place between May and December of 2025, to the degree to which you can make payments early and often, it will help immensely. Some will make a one-time lump sum donation. Others will divide their pledge payments over two or three years. You can set up giving for the campaign in Realm with the dropdown selection “75th Campaign.” Please make sure you specify gifts to the 75th Anniversary Capital Campaign as “75th Campaign.” Please see our button, "New Things."

  • Yes. Please continue to support our annual operating budget with your annual stewardship pledge. Early each fall, we request your annual stewardship pledge and, as costs are ever increasing, we ask that you consider a small increase in your annual stewardship pledge every year to support outreach, programs, personnel, and general operations and upkeep of the buildings and grounds. Your pledge to the capital campaign is an above-and-beyond gift for these specific one-time projects for the church.

  • We are glad you asked. Our leadership is passionate about this Capital Campaign and its component projects, and any one of them would be eager to talk with you. Susan and Ned Breunig are our Capital Campaign fundraising chairs. Martha Evans is leading the prayer garden enhancement project with the prayer garden team: Jennifer Petritz, Chris Elwell, Marcia Reese, and Susan Breunig. Jim Reese is now leading the renovation of the Kitchen, Gable Hall, and Cafe, with Junior Warden Amanda Giffin, Facilities Manager Quentin Lonon, and Monica Mainwaring.  Annemarie Madden, Dinah Howell, and Martha Evans were part of the initial design meetings. Jim Reese completed the HVAC replacement with Quentin Lonon and the 2024 Administrative Commission: Martha Evans, Monica Mainwaring, Grant Ford, Marion Hodges, Quentin Lonon, Tim Peek, Chris Elwell, Bob Hamilton, and Dinah Howell. The Endowment Fund is supportive of this campaign, and Chair Brad Ferrer is available to discuss it along with Trustees. The Vestry is embracing this Capital Campaign and its projects as its priority leading up to the 75th Anniversary – Senior Warden Diana Parise welcomes questions, along with Vestry members Amanda Giffin, Bill Petritz, Tye Edwards, Sam Baroody, Pete Bednarzyk, Mary Bendeck, Chris Elwell,  Lauren Cartwright, Scott Foster, Scott Madden, Nancy Smith,  and Monica Mainwaring.  The Vestry members who rolled off in 2024 are also intimately acquainted with the project details: Leslie Uddin, Caroline Rose, Man Martin, along with Jim Reese. Financial inquiries are best addressed by Treasurer Scott Foster or any member of the Finance Commission. Rector Monica Mainwaring has likely already invited you to be a part of all of this, and her staff stand at the ready to help you engage with these projects – Business Administrator Leslie Rose will be your go-to if you need any assistance with your pledge or gift to this Capital Campaign.

  • Right here on our church website, we will keep you informed of progress throughout this 75th Anniversary Capital Campaign. Please see our button, "New Things.”


Contributors

Thank you to those who have pledged in support of the 75th Anniversary Capital Campaign.

Mark Adkins; Barbara Adler; Tom & Louisa Affleck; Anne & Sam Baroody; Lauren Bacon; Andy & Elizabeth Beck; Pete Bednarzyk & Victoria Hastie; Sidonia "Nona" Bell; Cindy & Craig Belisle; Kareem & Mary Bendeck; Leslie Bentley; Graham & Morgan Berg; John & Kristi Betz; Bill Blashke; Andrew Boatright; Joel Brockmann & Ann McNeer; Kirk & Caroline Brown; Colin & Christie Brown; Ned & Susan Breunig; John Capriotti; Kathryn & John Carr; Wayne & Lauren Cartwright; Lawrence & Theresa Catchpole; Martin & Erin Chen; Barbara Chubb; Bob & Janet Comegys; Gillian Cooper; Meg & John Councilman; Peter & Polly Cranston; Cory & Beth Crotty; Philip & Betsy Culberson; Bill & Dianne Danneman; Jed & Stephanie Dennard; John & Susannah Dryman; Brandon & Ann Duke; David & Susan Duke; Jesse & Allison Dyer; The Children and Grandchildren of Linda & Bill Easterlin; Ann & Sue Edwards; Tye & Kimberly Edwards; Christopher & Kirsty Elwell; Martha Evans; Kathy Evenson; Brad & Patty Ferrer; Bill & Gail Fisher; Grant & Leigh Ford; Scott & Ann Foster; David & Ashley Fricano; Sam & Amanda Giffin; Barrett & Patrick Gleason; Bill & Joan Goodhew; Bob & Pat Gooding; Will Gotmer; Carolyn Haile; Mitchell & Marybeth Haas; Susie Hall; Chris & Julie Hamilton; Bob & Susan Hamilton; Marae Hamlin; Kirk & Samantha Harpole; Bert & Betsy Harrington; Beth Holland; Peggy Holt; Sarah Hogrefe; Marion & Anne Hodges; Dinah Howell; Eric & Louise Hughes; Randy & Linda Hughes; Gay Jolley; Tim & Jody Kelly; Rick & Angela Kirby; Nicole Leet; Ann Lemmon; Nathalie Letkeman; Chris & Renee Loope; Jeff & Kelli Mack; Scott & Annemarie Madden; Gregg & Ann Magruder; Monica & Simon Mainwaring; Man & Nancy Martin; Robert & Sara Massey; Linda MacArthur; Stuart McCracken; Tom & Jackie McCracken; Bill & Jane McDonald; Jennifer McCracken New & Jason New; Val McIntyre; Nell Moeling; Andy Moore; Michael & Barbara Mudler; Doug & Sally Nail; Chris & Christine Nama; Jan Noll; Greg & Lara Nordstrom; Judi Oakley; Ayibatari Owi; Jon & Diana Parise; Dottie Palmer; Fran Pearson; Tim Peek & Helen Ingebritsen; Annelise Petritz; Bill & Jennifer Petritz; Brad & Kristen Phelps; Jack & Pat Pickard; Lee Plunkett; Cheryl Ponder; Brad & Julie Reback; Jim & Marcia Reese; Tom & Marjorie Reilly; Patti Richards; Jim & Carol Roberts; Haynes & Betsy Roberts; Rick & Catherine Rogers; Leslie & Hal Rose; Karen Rose; Matt & Caroline Rose; Chris Rouse; Jon & Sally Roy; Charles & Nancy Runion; Elizabeth Saylor; Mary Jo Sibbald; Becky & Daniel Silbert; John & Barbara Skrobko; Consuela Smikle; Charlotte Smith; Danny & Lisa Smith; Nancy Easterlin Smith; Greg & Anna Smith; Carol Smith; Janet Shepherd; Preston Stevens; Mary Margaret Stewart & Jason Allen; Ken Swanson; Darlene Price Swanson; Michael Swikata & Stephanie Cafferty; Sabir Wajhuddin & Leslie Uddin; Nick & Paige Viola; Neil Walden; Bailey & Holly Webb; Brad & Kelly Weselman; Julie Weimer; Nathan Whitmire; Kyle Whitmire; George & Angela Williamson; Danny Wingard; Grant & Holly Yarborough; Ed & Heather Zunzunegui.

 
 
New Things
estimated cost for this campaign
Capital Campaign timeline: 2024-26
plans/concept for Prayer garden
Plans for Kitchen, Gable Hall, and Cafe
plans to Replace the HVAC system
seed our Capital Reserve Account
give to our 75th capital campaign
Questions? go to our faq section